MS-GESTIONA · Detalles

Características

  • 3 Dormitorios
  • 2 Baños
  • 6 o más estacionamientos
  • Área 2.550

Excelente casa en primera línea con increíbles vistas en 180° y bajada directa a la playa y a una piscina natural entre las rocas. 

Casa ecológica con electricidad fotovoltaica, cuenta con pozo propio, estanque de gas a granel de 500 lts, construida el año 2010, la construcción cuenta con rol propio, permiso de edificación y recepción final, todos sus papeles al día.


Ubicada en el loteo ecológico El Rosario de Tunquen. 


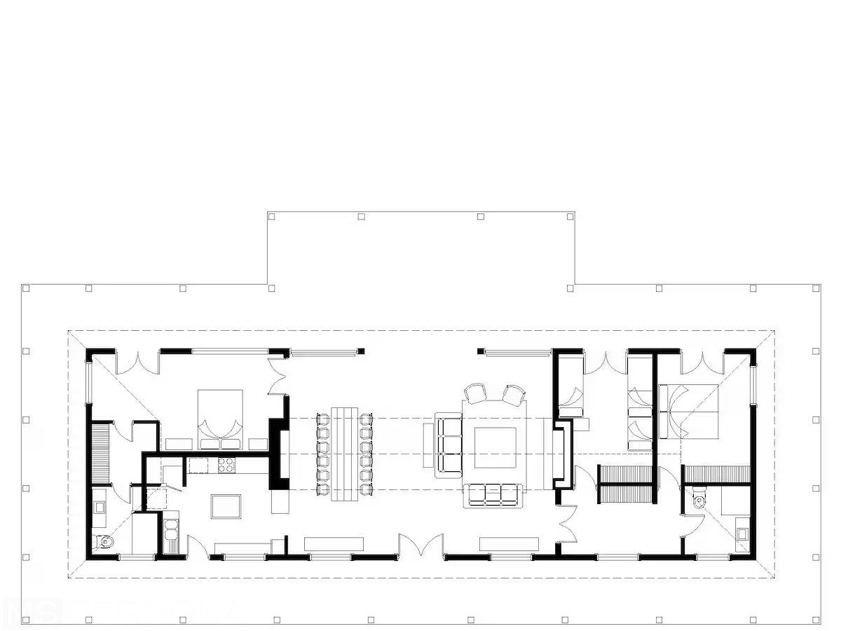
Todos los dormitorios y living comedor tienen vista despejada al mar.


La casa tiene  170m2 construidos en un terreno de 2.550m2, cuyo límite poniente es de 55 metros lineales al océano Pacífico.


Tres dormitorios, principal en suite, dos baños, chimenea, dos terrazas.


Excelente oportunidad en primera línea, vale la pena visitarla

Valores

Características

Especificaciones Técnicas

Ubicación

Características Adicionales

Pide más información